|
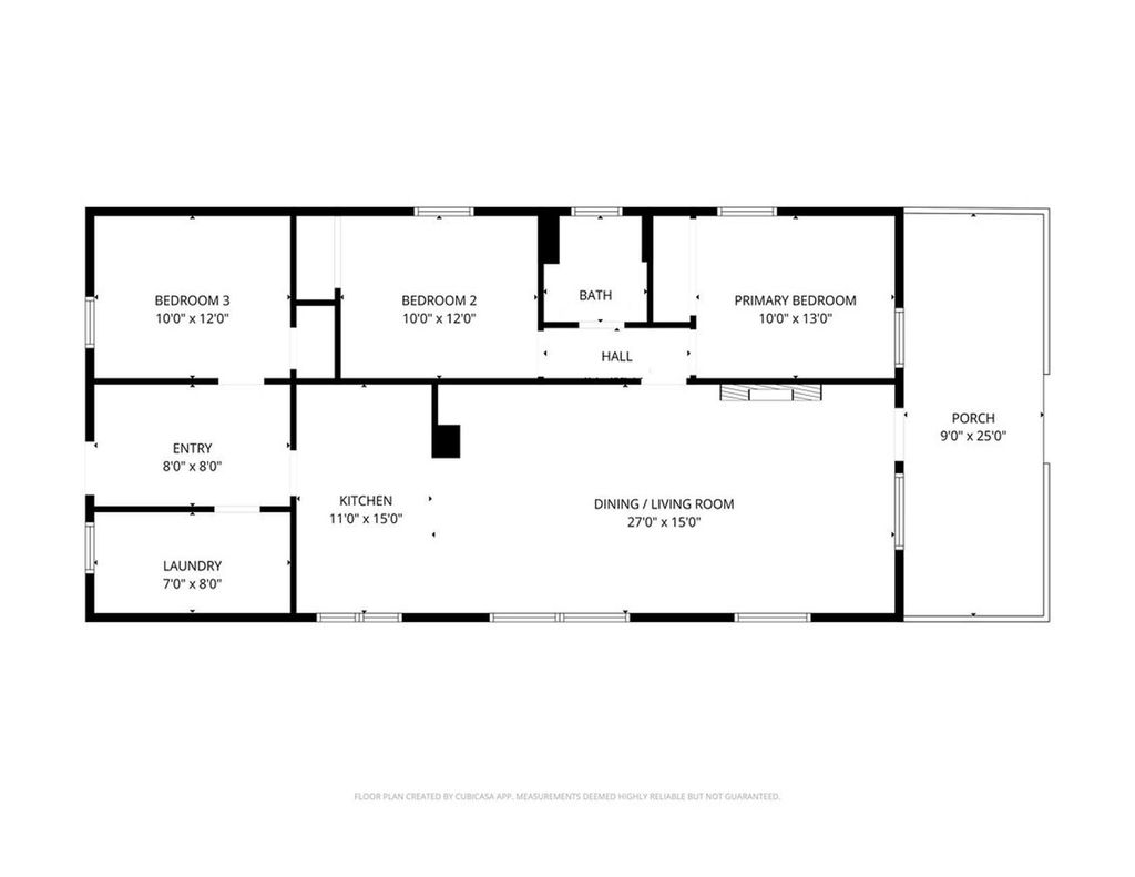
Stylish updates meet everyday functionality in this 1,200 sq ft 3 bedroom, 1 bath bungalow. The open concept living room features updated flooring featuring a wall mounted TV with custom surround and industrial inspired shelving, which remains. The updated kitchen showcases decorative ceramic tile backsplash, solid surface countertops, stainless steel appliances, breakfast bar seating, and an original exposed brick wall feature full of character. The full bathroom features modern tilework, stylish vanity, and ceramic tile tub and shower surround. Generously sized main floor laundry room with a new washer, folding station, and plenty of storage cabinets can be accessed through a stylish barn door from a large mudroom back entry. A detached 2 car garage and fully fenced backyard along with the covered front porch and convenient location make this a wonderful place to call home.
| DAYS ON MARKET | 1 | LAST UPDATED | 2/23/2026 |
|---|---|---|---|
| TRACT | None | YEAR BUILT | 1919 |
| GARAGE SPACES | 2.0 | COUNTY | Howard |
| STATUS | Pending | PROPERTY TYPE(S) | Single Family |
| School District | Kokomo-Center Township Cons. S.D |
|---|---|
| Elementary School | Elwood Haynes |
| Jr. High School | Maple Crest |
| High School | Kokomo |
| ADDITIONAL DETAILS | |
| AIR | Ceiling Fan(s), Central Air |
|---|---|
| AIR CONDITIONING | Yes |
| APPLIANCES | Dishwasher, Dryer, Freezer, Gas Range, Gas Water Heater, Microwave, Refrigerator, Solar Hot Water, Washer, Water Heater |
| BASEMENT | Crawl Space, Partial, Unfinished, Yes |
| CONSTRUCTION | Brick |
| GARAGE | Yes |
| HEAT | Forced Air |
| INTERIOR | Breakfast Bar, Ceiling Fan(s), Eat-In Kitchen |
| LOT | 6098 sq ft |
| LOT DESCRIPTION | Landscaped, Level |
| LOT DIMENSIONS | 40x147 |
| PARKING | Garage Door Opener, Concrete, Garage, Detached |
| SEWER | Public Sewer |
| STORIES | 1 |
| STYLE | Bungalow |
| SUBDIVISION | None |
| TAXES | 1300 |
| UTILITIES | Cable Available |
| WATER | Public |
MORTGAGE CALCULATOR
TOTAL MONTHLY PAYMENT
0
P
I
*Estimate only
Listed with Lindsay Ousley, The Wyman Group, Cell: 765-860-2920
The data relating to real estate for sale on this web site comes in part from the Internet Data exchange (“IDX”) program of the Indiana Regional MLS®. IDX information is provided exclusively for consumers’ personal, non-commercial use, that it may not be used for any purpose other than to identify prospective properties consumers may be interested in purchasing. Data is deemed reliable but is not guaranteed accurate by the MLS.
Copyright© 2026 IRMLS. All rights reserved.
Last Updated On: 2/24/26 9:39 AM PST
Walk Score provided by walkscore.com
Copyright© 2026 IRMLS. All rights reserved.
Last Updated On: 2/24/26 9:39 AM PST
Walk Score provided by walkscore.com
This IDX solution is (c) Diverse Solutions 2026.
| / | |
We respect your online privacy and will never spam you. By submitting this form with your telephone number
you are consenting for Gary
Gerardot to contact you even if your name is on a Federal or State
"Do not call List".
