|
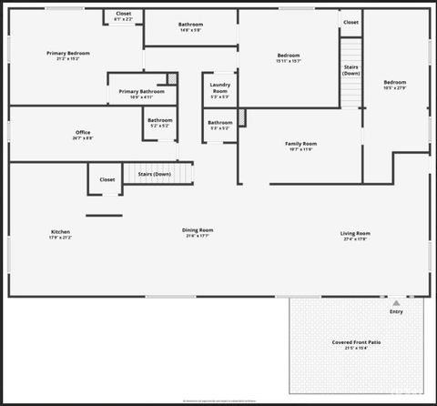
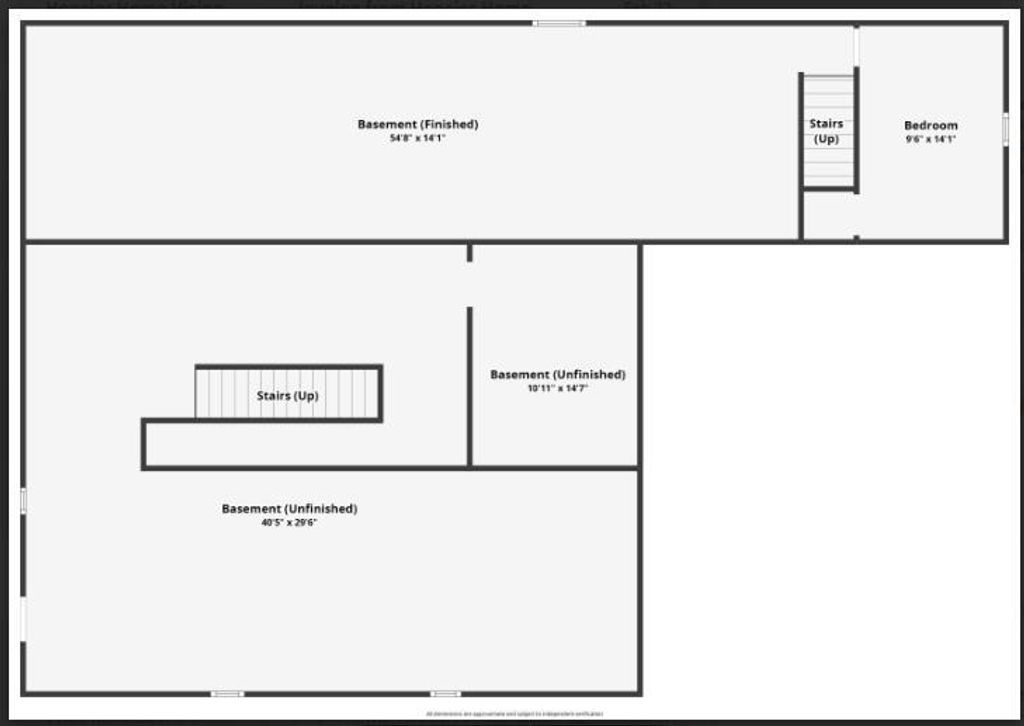
(USDA financing may be available for qualified buyers, potentially offering 0% down payment. Buyer eligibility and loan terms subject to lender approval.) Charming yet expansive, this exceptional 4-bedroom residence is gracefully set on a serene half-acre lot, offering a rare blend of space, comfort, and endless potential. Boasting approximately 2,970 square feet of thoughtfully designed living space, along with 2 full baths and 2 half baths, this home provides both functionality and refined living. Step inside to a warm, inviting open-concept layout that effortlessly connects the living, dining, and kitchen areas"”ideal for both everyday living and elegant entertaining. The well-appointed kitchen caters to culinary enthusiasts, featuring generous counter space, ample cabinetry, and modern appliances. Two of the generously sized bedrooms feature private en-suite bathrooms, creating peaceful retreats for family members or guests. The remaining bedrooms are equally spacious and versatile, easily adapting to your lifestyle needs. A dedicated bonus room offers the perfect setting for a home office, media room, playroom, or guest suite"”adding flexibility and value. The full basement, spanning over 2,800 square feet, presents a remarkable blank canvas with limitless possibilities. Whether you envision a luxury recreation space, fitness studio, home theater, or additional living quarters, this expansive lower level is ready to be transformed. Surrounded by abundant outdoor space and tranquil surroundings, this property offers the privacy and room to create your ideal lifestyle"”an exceptional opportunity to personalize a home with scale, substance, and lasting appeal.
| DAYS ON MARKET | 1 | LAST UPDATED | 2/23/2026 |
|---|---|---|---|
| TRACT | None | YEAR BUILT | 1988 |
| COUNTY | LaGrange | STATUS | Active |
| PROPERTY TYPE(S) | Single Family |
| School District | Lakeland School Corp |
|---|---|
| Elementary School | Lakeland Primary |
| Jr. High School | Lakeland Intermediate |
| High School | Lakeland Jr/Sr |
| ADDITIONAL DETAILS | |
| AIR | Central Air |
|---|---|
| AIR CONDITIONING | Yes |
| APPLIANCES | Electric Range, Refrigerator, Water Softener Owned |
| BASEMENT | Full, Unfinished, Walk-Out Access, Yes |
| CONSTRUCTION | Stone, Wood Siding |
| HEAT | Forced Air |
| LOT | 0.53 acre(s) |
| LOT DESCRIPTION | Level |
| LOT DIMENSIONS | 171x291x172 |
| SEWER | Public Sewer |
| STORIES | 1 |
| STYLE | 1 Level |
| SUBDIVISION | None |
| TAXES | 1556.06 |
| WATER | Public |
MORTGAGE CALCULATOR
TOTAL MONTHLY PAYMENT
0
P
I
*Estimate only
Listed with Tyler Dohner, CENTURY 21 Bradley Realty, Inc, Cell: 260-246-1298
The data relating to real estate for sale on this web site comes in part from the Internet Data exchange (“IDX”) program of the Indiana Regional MLS®. IDX information is provided exclusively for consumers’ personal, non-commercial use, that it may not be used for any purpose other than to identify prospective properties consumers may be interested in purchasing. Data is deemed reliable but is not guaranteed accurate by the MLS.
Copyright© 2026 IRMLS. All rights reserved.
Last Updated On: 2/24/26 6:55 AM PST
Walk Score provided by walkscore.com
Copyright© 2026 IRMLS. All rights reserved.
Last Updated On: 2/24/26 6:55 AM PST
Walk Score provided by walkscore.com
This IDX solution is (c) Diverse Solutions 2026.
| / | |
We respect your online privacy and will never spam you. By submitting this form with your telephone number
you are consenting for Gary
Gerardot to contact you even if your name is on a Federal or State
"Do not call List".
