|
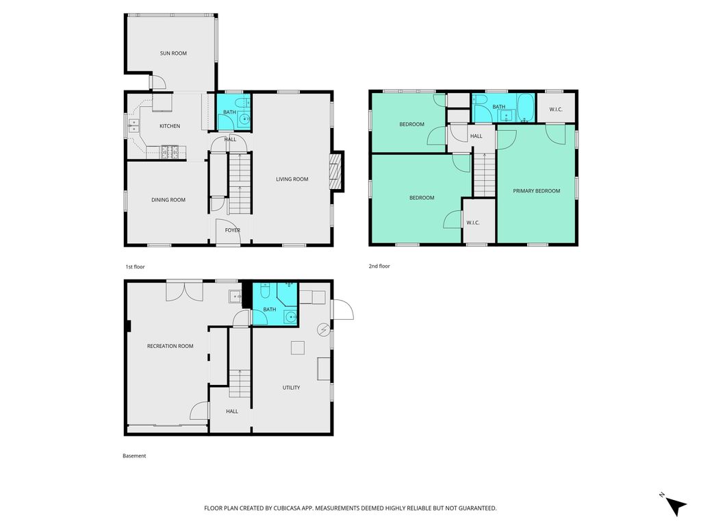
Welcome to 1414 N. Salisbury Street, a beautifully maintained home in the heart of West Lafayette. Ideally located just minutes from Purdue University, top-rated schools, parks, and local dining, this property offers the perfect blend of convenience and classic neighborhood charm. Situated on a generous 9,372 sqft lot, this 3-bedroom, 2.5-bath home provides both space and comfort inside and out. The inviting layout features a large living room filled with natural light, which is perfect for gathering and everyday living. Additionally, there is a stunning sunroom that offers a peaceful retreat year-round. The home's spacious basement adds even more flexibility, ideal for storage, recreation, or future finishing potential. Each bedroom is well-sized, and the 2.5 baths provide both functionality and convenience for daily living. Outside, the expansive lot offers room to relax, entertain, or simply enjoy the setting in one of West Lafayette's most desirable and established areas. With its combination of location, space, and character, 1414 N. Salisbury Street is a rare opportunity to own a truly special home in a highly sought-after market.
| DAYS ON MARKET | 4 | LAST UPDATED | 4/10/2026 |
|---|---|---|---|
| TRACT | None | YEAR BUILT | 1948 |
| GARAGE SPACES | 2.0 | COUNTY | Tippecanoe |
| STATUS | Pending | PROPERTY TYPE(S) | Single Family |
| School District | West Lafayette Community School |
|---|---|
| Elementary School | West Lafayette |
| Jr. High School | West Lafayette |
| High School | West Lafayette |
| ADDITIONAL DETAILS | |
| AIR | Central Air |
|---|---|
| AIR CONDITIONING | Yes |
| APPLIANCES | Dishwasher, Dryer, Gas Range, Refrigerator, Washer |
| BASEMENT | Finished, Full, Walk-Out Access, Yes |
| CONSTRUCTION | Vinyl Siding |
| FIREPLACE | Yes |
| GARAGE | Yes |
| HEAT | Forced Air |
| LOT | 9583 sq ft |
| LOT DESCRIPTION | Rolling Slope, Wooded |
| LOT DIMENSIONS | 70x135 |
| PARKING | Detached |
| SEWER | Public Sewer |
| STORIES | 2 |
| STYLE | Two Story |
| SUBDIVISION | None |
| TAXES | 3156.72 |
| WATER | Public |
MORTGAGE CALCULATOR
TOTAL MONTHLY PAYMENT
0
P
I
*Estimate only
Listed with John Strong, F.C. Tucker/Shook
The data relating to real estate for sale on this web site comes in part from the Internet Data exchange (“IDX”) program of the Indiana Regional MLS®. IDX information is provided exclusively for consumers’ personal, non-commercial use, that it may not be used for any purpose other than to identify prospective properties consumers may be interested in purchasing. Data is deemed reliable but is not guaranteed accurate by the MLS.
Copyright© 2026 IRMLS. All rights reserved.
Last Updated On: 4/14/26 4:20 AM PDT
Walk Score provided by walkscore.com
Copyright© 2026 IRMLS. All rights reserved.
Last Updated On: 4/14/26 4:20 AM PDT
Walk Score provided by walkscore.com
This IDX solution is (c) Diverse Solutions 2026.
| / | |
We respect your online privacy and will never spam you. By submitting this form with your telephone number
you are consenting for Gary
Gerardot to contact you even if your name is on a Federal or State
"Do not call List".
